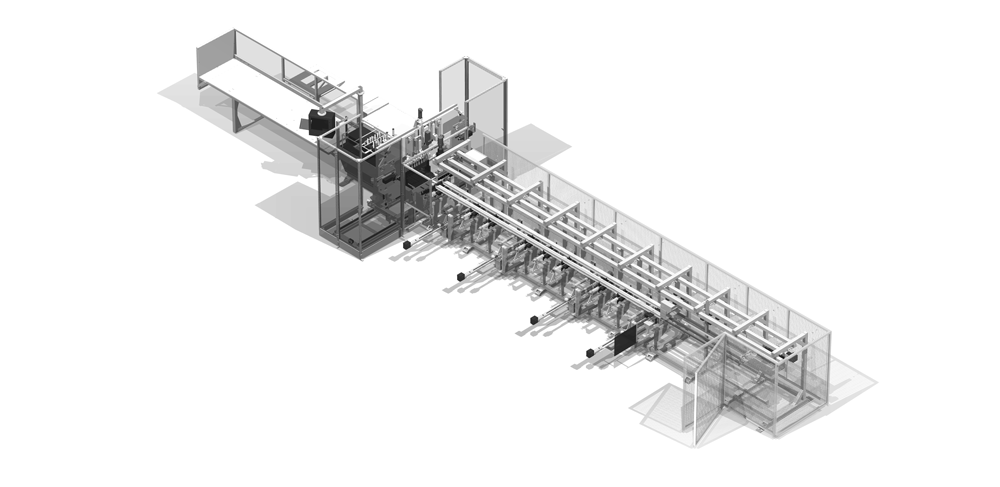
Automatic saw with conveyor and machining center for an all-in-one solution
Reduce waste of space, choose this saw that allow to cut and machine your pieces in same cycle. Fill the machine and check the magic.
- Possible optimization of the losses according to various criteria which one can be twinned together, such as the number of cuts, the length of the last waste of the bar and the time of machining.
- The in-feed pusher allows to machining of more than one opening in a full bar, to cut the pieces automatically and without any setup.
- Machine the frame and the mullion to install the lock, the handle hardware and localization of hole of hardware.
- Profile installation support can be to the right or to the left of the 45º saw based on need of customer.
- Fully programmable advance of the extrusion basic optimization of the loss between the successive cuts.
- Touch screen Windows working based optimization software from a database of the customer orders directly located on the factory network.
Options
- Computer used to transfer information from your fabrication software to the machine's PLC.
- The 90º on the PROZSS make possible to cut the mullions, the meeting rails, while preserving the principle of basic optimization.
- Profile loader

- System "Optimization +"
- Assistance for programming
- Saw blade
- Fixture 'JIGS'